Lotissement Plabennec
29860 PlabennecDétails du lotissement
- Lotissement ID: 2490
- Localisation: 29860 Plabennec
- Type de Bien: Terrains constructibles
- Nombre de terrains 82 terrains
- Nombre de terrains vendus 82 terrains
- Nombre de terrains réservés 0 terrains
- Nombre de terrains disponibles 0 terrains
Description du lotissement
Lotissement de Plabennec. Tous les logements sont orientés au Sud pour limiter les besoins de chauffage. La priorité est donnée aux piétons et aux cyclistes (plusieurs rues sont entièrement piétonnes)Parfait pour les familles.. Situé proche du centre ville et de tous les services. sur la commune de Plabennec dans le departement du 29. Il dispose de 82 terrains constructibles à vendre. Si tous les terrains sont vendus ou réservés, vous pouvez néanmoins nous contacter pour que nous vous aidions dans votre recherche. Il se peut aussi qu'un terrain réservé repasse en libre suite à un désistement de l'acquéreur.
Caractéristiques et Equipements
- Terrain constructible
- Réseaux Electrique
- Réseaux D'eau
- Réseaux d'assainissement
- Réseaux d'eau Pluvial
- Aménagement des voiries
- Réseaux Internet et télécommunications
- Parkings publics
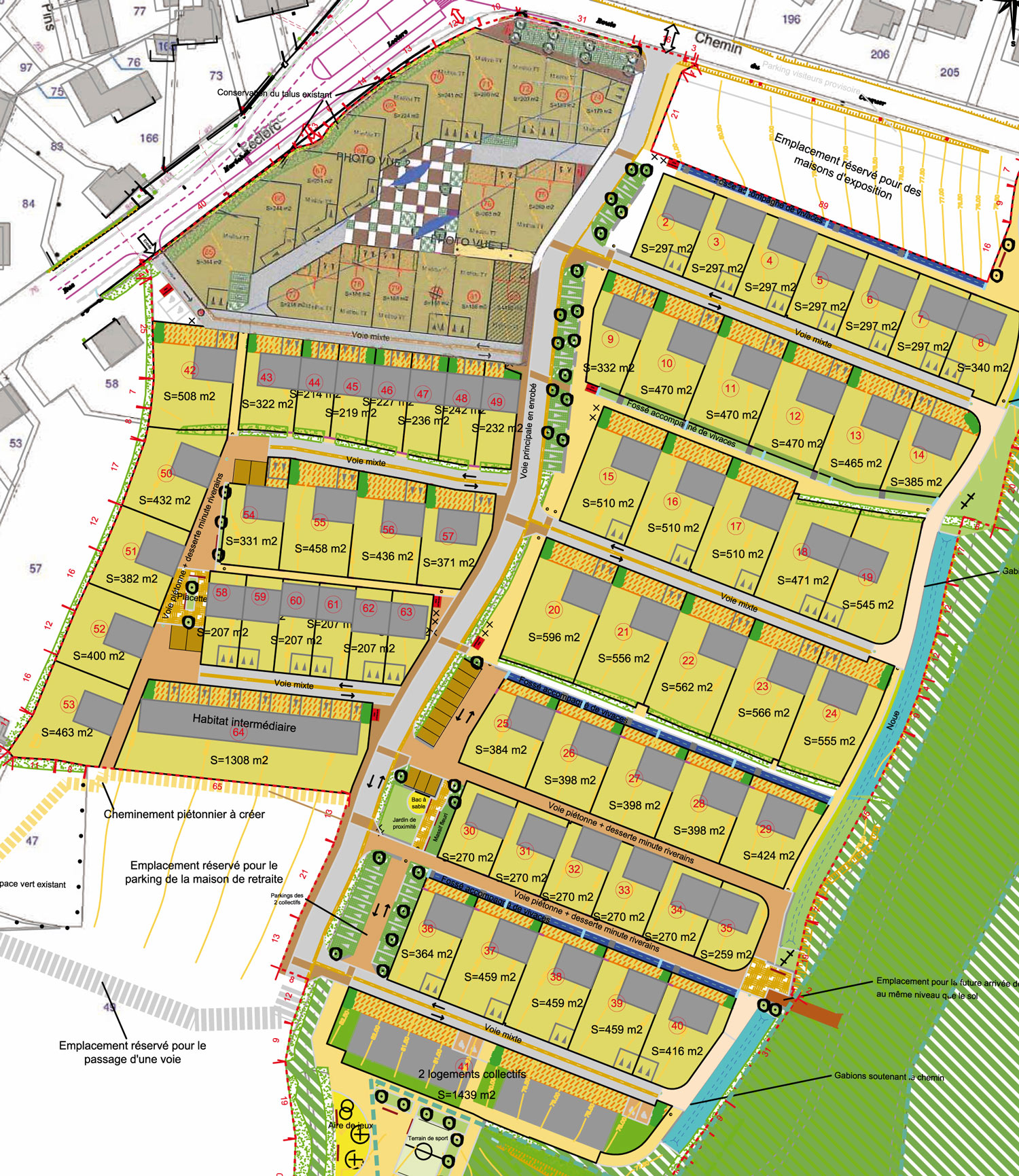
| N° de terrain | Surface | Prix |
|---|---|---|
| 1 | 5152 | VENDU |
| 2 | 297 | VENDU |
| 3 | 297 | VENDU |
| 4 | 297 | VENDU |
| 5 | 297 | VENDU |
| 6 | 297 | VENDU |
| 7 | 297 | VENDU |
| 8 | 340 | VENDU |
| 9 | 332 | VENDU |
| 10 | 470 | VENDU |
| 11 | 470 | VENDU |
| 12 | 470 | VENDU |
| 13 | 465 | VENDU |
| 14 | 385 | VENDU |
| 15 | 510 | VENDU |
| 16 | 510 | VENDU |
| 17 | 510 | VENDU |
| 18 | 471 | VENDU |
| 19 | 545 | VENDU |
| 20 | 596 | VENDU |
| 21 | 556 | VENDU |
| 22 | 562 | VENDU |
| 23 | 566 | VENDU |
| 24 | 555 | VENDU |
| 25 | 384 | VENDU |
| 26 | 398 | VENDU |
| 27 | 398 | VENDU |
| 28 | 398 | VENDU |
| 29 | 424 | VENDU |
| 30 | 270 | VENDU |
| 31 | 270 | VENDU |
| 32 | 270 | VENDU |
| 33 | 270 | VENDU |
| 34 | 270 | VENDU |
| 35 | 259 | VENDU |
| 36 | 364 | VENDU |
| 37 | 459 | VENDU |
| 38 | 459 | VENDU |
| 39 | 459 | VENDU |
| 40 | 416 | VENDU |
| 41 | 1439 | VENDU |
| 42 | 508 | VENDU |
| 43 | 322 | VENDU |
| 44 | 214 | VENDU |
| 45 | 219 | VENDU |
| 46 | 227 | VENDU |
| 47 | 236 | VENDU |
| 48 | 242 | VENDU |
| 49 | 232 | VENDU |
| 50 | 432 | VENDU |
| 51 | 382 | VENDU |
| 52 | 400 | VENDU |
| 53 | 463 | VENDU |
| 54 | 331 | VENDU |
| 55 | 458 | VENDU |
| 56 | 436 | VENDU |
| 57 | 371 | VENDU |
| 58 | 207 | VENDU |
| 59 | 207 | VENDU |
| 60 | 207 | VENDU |
| 61 | 207 | VENDU |
| 62 | 207 | VENDU |
| 63 | 198 | VENDU |
| 64 | 1308 | VENDU |
| 65 | 344 | VENDU |
| 66 | 244 | VENDU |
| 67 | 251 | VENDU |
| 68 | 267 | VENDU |
| 69 | 224 | VENDU |
| 70 | 241 | VENDU |
| 71 | 260 | VENDU |
| 72 | 203 | VENDU |
| 73 | 183 | VENDU |
| 74 | 179 | VENDU |
| 75 | 269 | VENDU |
| 76 | 263 | VENDU |
| 77 | 216 | VENDU |
| 78 | 188 | VENDU |
| 79 | 188 | VENDU |
| 80 | 188 | VENDU |
| 81 | 188 | VENDU |
| 82 | 182 | VENDU |
Demandes d'informations sur un terrain
Contactez Finis'Terrains
contactez Finisterrains pour plus d'informations sur un terrain à vendre !
- Telephone: 02.98.01.48.21
- Email: contact@finisterrains.com