Lotissement Les coteaux du relecq
29480 Relecq-Kerhuon (Le)Détails du lotissement
- Lotissement ID: 809
- Localisation: 29480 Relecq-Kerhuon (Le)
- Type de Bien: Terrains constructibles
- Nombre de terrains 37 terrains
- Nombre de terrains vendus 37 terrains
- Nombre de terrains réservés 0 terrains
- Nombre de terrains disponibles 0 terrains
Description du lotissement
Le Relecq-Kerhuon est située juste à l’est de Brest, limitrophe de la commune de Guipavas . C’est aussi une presqu’île entourée par la mer sur trois côtés : la rade de Brest à l’ouest, estuaire de l’Élorn au sud et anse de Kerhuon. sur la commune de Relecq-Kerhuon (Le) dans le departement du 29. Il dispose de 37 terrains constructibles à vendre. Si tous les terrains sont vendus ou réservés, vous pouvez néanmoins nous contacter pour que nous vous aidions dans votre recherche. Il se peut aussi qu'un terrain réservé repasse en libre suite à un désistement de l'acquéreur.
Caractéristiques et Equipements
- Terrain constructible
- Réseaux Electrique
- Réseaux D'eau
- Réseaux d'assainissement
- Réseaux d'eau Pluvial
- Aménagement des voiries
- Réseaux Internet et télécommunications
- Parkings publics
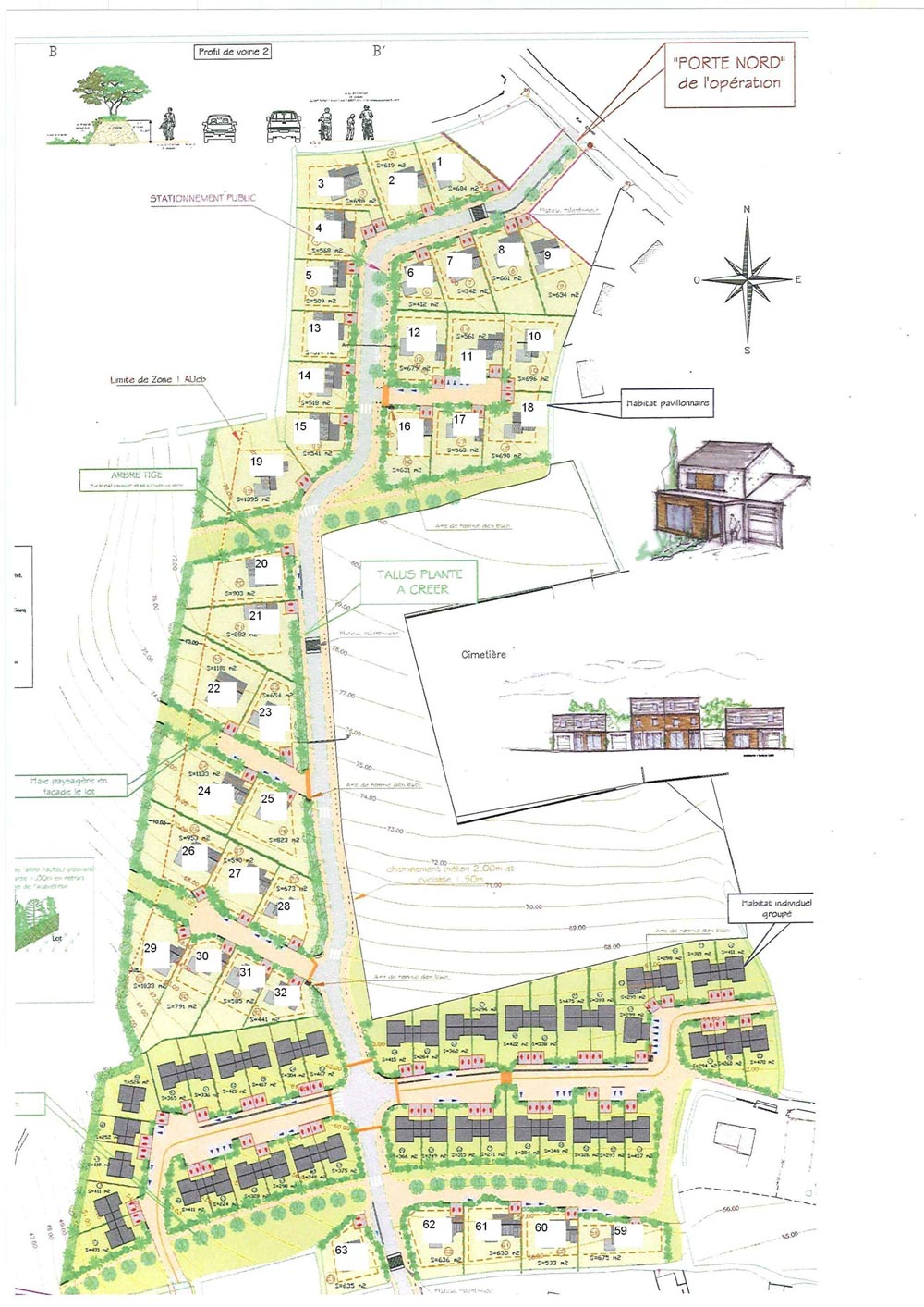
| N° de terrain | Surface | Prix |
|---|---|---|
| 1 | 604 | VENDU |
| 2 | 619 | VENDU |
| 3 | 698 | VENDU |
| 4 | 568 | VENDU |
| 5 | 509 | VENDU |
| 6 | 412 | VENDU |
| 7 | 542 | VENDU |
| 8 | 661 | VENDU |
| 9 | 634 | VENDU |
| 10 | 696 | VENDU |
| 11 | 561 | VENDU |
| 12 | 679 | VENDU |
| 13 | 514 | VENDU |
| 14 | 518 | VENDU |
| 15 | 541 | VENDU |
| 16 | 631 | VENDU |
| 17 | 563 | VENDU |
| 18 | 690 | VENDU |
| 19 | 1395 | VENDU |
| 20 | 903 | VENDU |
| 21 | 882 | VENDU |
| 22 | 1101 | VENDU |
| 23 | 654 | VENDU |
| 24 | 1133 | VENDU |
| 25 | 823 | VENDU |
| 26 | 953 | VENDU |
| 27 | 590 | VENDU |
| 28 | 673 | VENDU |
| 29 | 1033 | VENDU |
| 30 | 791 | VENDU |
| 31 | 585 | VENDU |
| 32 | 441 | VENDU |
| 59 | 675 | VENDU |
| 60 | 533 | VENDU |
| 61 | 635 | VENDU |
| 62 | 636 | VENDU |
| 63 | 635 | VENDU |
Demandes d'informations sur un terrain
Contactez Finis'Terrains
contactez Finisterrains pour plus d'informations sur un terrain à vendre !
- Telephone: 02.98.01.48.21
- Email: contact@finisterrains.com